杉並区の不動産購入・売却・買取査定・未公開物件|城西ハウス > (戸建(売買))路線・駅から探す > 京王電鉄京王井の頭線 > 高井戸駅 > 高井戸西2丁目 新築戸建 B号棟
道路を挟んで向かい側には生産緑地が広がり、解放感に恵まれた立地環境!一階リビング、水廻りワンフロア集約設計の新築戸建、完成済です♪
現地案内会 毎週土日祝
【外観】駅徒歩6分の制震ダンパー搭載住宅♪♪道路を挟んで向かい側には生産緑地が広がり、解放感に恵まれた立地環境!一階リビング、水廻りワンフロア集約設計の新築戸建、完成済です♪
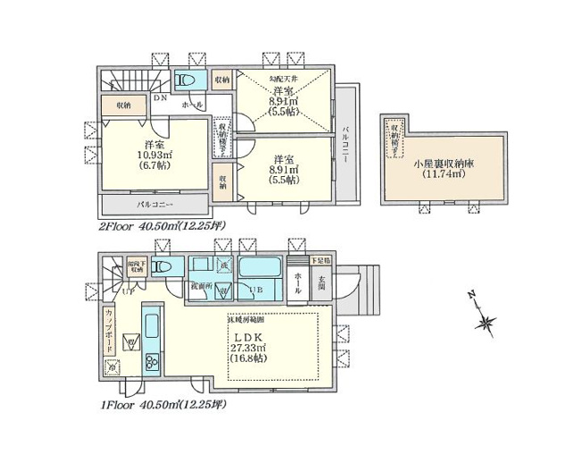
【間取り】駅徒歩6分の制震ダンパー搭載住宅♪♪道路を挟んで向かい側には生産緑地が広がり、解放感に恵まれた立地環境!一階リビング、水廻りワンフロア集約設計の新築戸建、完成済です♪
※写真や図と実際の現状とが異なる場合は現状を優先させていただきます。











(※元利均等方式 金利5.00%まで ※返済年数5~50年まで入力できます)
(※ボーナスは年2回で計算しています。1000万円まで入力できます)
(※物件購入時、その他諸費用が発生する場合がございます)
| 所在地 | 東京都杉並区高井戸西2丁目 | ||
|---|---|---|---|
| 交通 | |||
| 間取り/詳細 | 3LDK/ | 建物面積(坪数) | 81.00㎡(24.5坪) |
| 価格 | 8,780万円 | ||
| 駐車場/月額料金 | 有/- | ||
| 土地の敷金/保証金 | -/- | 借地料/借地期間 | -/- |
| 土地権利 | 所有権 | 土地面積(坪数) | 101.56㎡(30.72坪) |
| 傾斜地部分面積 | - | 路地状敷地 | - |
| 私道負担面積/セットバック | -/無 | 高圧線下面積 | - |
| 地目/地勢 | 宅地/平坦 | 接道状況 | 一方(南東 公道 5.4m) |
| 建ぺい率/容積率 | 40%/80% | 用途地域 | 第一種低層住居専用 |
| 都市計画 | 市街化区域 | 種別/構造 | 新築一戸建/木造 |
| 階建 | 2階建 | 築年月(築年数) | 2023年 7月 (新築) |
| 総区画数/販売区画数 | 2区画/1区画 | 向き | 南東 |
| 現況 | 完成済み | その他の法令上の制限 | 景観法/高度地区/準防火地域/高さ最高限度有/敷地面積最低限度有/日影制限有 |
| 取引態様/引渡時期 | 仲介/即時 | 建築確認番号 | - |
| 物件番号 | 83105105 | 取引条件の有効期限 | 2025年11月26日 |
| 設備条件 |
|
||
| 備考 |
▼駅徒歩6分の制震ダンパー搭載住宅♪♪ ▼京王線「富士見ヶ丘」駅は時間帯により始発もございます! ▼東南向きで陽当りが良く、南西側には通路もございます。 ▼一階リビング、水廻りもLDKフロアに集約され導線良好♪ ▼小屋裏収納付きで収納力ある一戸建て |
||
| 取扱会社 |
|
||
| QRコード |
このQRコードを読み取ることで、スマホでも物件情報を確認できます。 |
||
※地図上に表示される物件の位置は付近住所に所在することを表すものであり、実際の物件所在地とは異なる場合がございます。
高井戸西2丁目 新築戸建 B号棟に関するこだわり条件から探す
杉並区以外の市区町村から探す