杉並区の不動産購入・売却・買取査定・未公開物件|城西ハウス > (戸建(売買))路線・駅から探す > 京王電鉄京王線 > 千歳烏山駅 > 世田谷区上祖師谷2丁目 新築戸建
繰り返す地震に効果を発揮する「耐震+制震」住宅!
~水廻り設備をリビングフロアに集約した二階建てレジデンスの誕生です~
【居間・リビング】低層住宅地に佇む二階建てレジデンス 前面道路は約5mの公道につき、お車の出し入れも楽々!
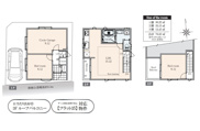
【間取り】低層住宅地に佇む二階建てレジデンス 前面道路は約5mの公道につき、お車の出し入れも楽々!
※写真や図と実際の現状とが異なる場合は現状を優先させていただきます。











(※元利均等方式 金利5.00%まで ※返済年数5~50年まで入力できます)
(※ボーナスは年2回で計算しています。1000万円まで入力できます)
(※物件購入時、その他諸費用が発生する場合がございます)
| 所在地 | 東京都世田谷区上祖師谷2丁目 | ||
|---|---|---|---|
| 交通 | |||
| 間取り/詳細 | 3LDK/ | 建物面積(坪数) | 78.97㎡(23.88坪) |
| 価格 | 6,380万円 | ||
| 駐車場/月額料金 | 有/0円 | ||
| 土地の敷金/保証金 | -/- | 借地料/借地期間 | -/- |
| 土地権利 | 所有権 | 土地面積(坪数) | 80.13㎡(24.23坪) |
| 傾斜地部分面積 | - | 路地状敷地 | - |
| 私道負担面積/セットバック | -/無 | 高圧線下面積 | - |
| 地目/地勢 | 宅地/平坦 | 接道状況 | 一方(北 私道 5.0m 間口 7.5m) |
| 建ぺい率/容積率 | 50%/100% | 用途地域 | 第一種低層住居専用 |
| 都市計画 | 市街化区域 | 種別/構造 | 新築一戸建/木造 |
| 階建 | 2階建 | 築年月(築年数) | 2021年 6月 (新築) |
| 総区画数/販売区画数 | 1区画/1区画 | 向き | 北 |
| 現況 | 完成済み | その他の法令上の制限 | 景観法/高度地区/準防火地域/敷地面積最低限度有/日影制限有 |
| 取引態様/引渡時期 | 仲介/即時 | 建築確認番号 | - |
| 物件番号 | 63868601 | 取引条件の有効期限 | 2025年11月26日 |
| 設備条件 |
|
||
| 備考 |
弊社、城西ハウスは「お客様からお客様の紹介」が絶えないことが自慢の会社です。 地域のNo1を意識ではなく、「お客様がお客様を紹介したくなる会社」を目指して努力を重ねて参ります。 |
||
| 取扱会社 |
|
||
| QRコード |
このQRコードを読み取ることで、スマホでも物件情報を確認できます。 |
||
※地図上に表示される物件の位置は付近住所に所在することを表すものであり、実際の物件所在地とは異なる場合がございます。
世田谷区上祖師谷2丁目 新築戸建に関するこだわり条件から探す
世田谷区以外の市区町村から探す
世田谷区にある駅から探す