杉並区の不動産購入・売却・買取査定・未公開物件|城西ハウス > (戸建(売買))路線・駅から探す > 都営地下鉄都営新宿線 > 船堀駅 > 江戸川区松江7丁目 新築戸建 A号棟
\弊社のみの取扱い!/ 駐車スペース2台分確保!LDK20帖、4LDK♪
現地案内会 毎週土日祝
【その他】施工会社の同程度仕様、施工例写真です。モデルハウスのご内覧、受付開始!お早めのご成約で外壁やフローリング等、カラーセレクトも対応致します♪
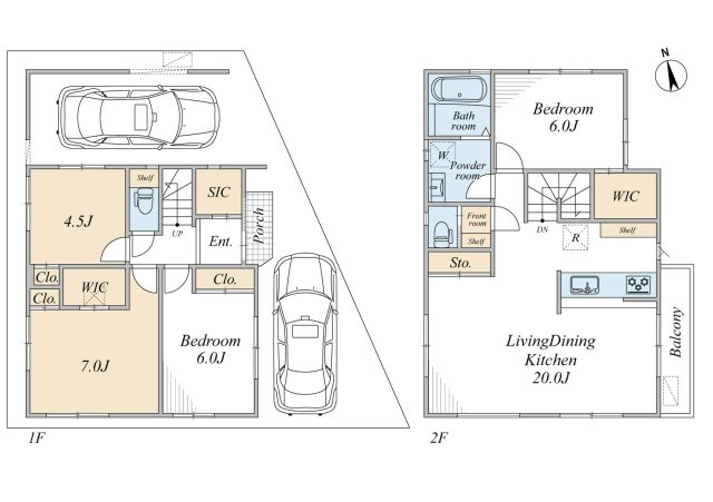
【間取り】駐車スペース2台分確保!ゆったり二階建てのLDK20帖、4LDKです♪玄関を入るとSIC、主寝室にはWICと収納も豊富!LDKフロアに水廻り設備を集約させた導線の良い間取り♪4部屋の内3部屋が6帖以上
※写真や図と実際の現状とが異なる場合は現状を優先させていただきます。











(※元利均等方式 金利5.00%まで ※返済年数5~50年まで入力できます)
(※ボーナスは年2回で計算しています。1000万円まで入力できます)
(※物件購入時、その他諸費用が発生する場合がございます)
| 所在地 | 東京都江戸川区松江7丁目 | ||
|---|---|---|---|
| 交通 | |||
| 間取り/詳細 | 4LDK/ | 建物面積(坪数) | 100.61㎡(30.43坪) |
| 価格 | 6,980万円 | ||
| 駐車場/月額料金 | 有/- | ||
| 土地の敷金/保証金 | -/- | 借地料/借地期間 | -/- |
| 土地権利 | 所有権 | 土地面積(坪数) | 93.94㎡(28.41坪) |
| 傾斜地部分面積 | - | 路地状敷地 | - |
| 私道負担面積/セットバック | -/無 | 高圧線下面積 | - |
| 地目/地勢 | 宅地/平坦 | 接道状況 | 一方(東 公道 8.1m) |
| 建ぺい率/容積率 | 60%/200% | 用途地域 | 第一種住居 |
| 都市計画 | 市街化区域 | 種別/構造 | 新築一戸建/木造 |
| 階建 | 2階建 | 築年月(築年数) | 2025年 12月 (予定) |
| 総区画数/販売区画数 | 2区画/2区画 | 向き | 東 |
| 現況 | 未完成 | その他の法令上の制限 | 景観法/高度地区/準防火地域 |
| 取引態様/引渡時期 | 仲介/2026年1月中旬 | 建築確認番号 | 第25UDI1T建01381号 |
| 物件番号 | 93286177 | 取引条件の有効期限 | 2025年11月26日 |
| 設備条件 |
|
||
| 備考 |
▼駐車スペース2台分確保!ゆったり二階建てのLDK20帖、4LDKです♪ ▼玄関を入るとSIC、主寝室にはWICと収納も豊富! ▼LDKフロアに水廻り設備を集約させた導線の良い間取り♪ ▼4部屋の内3部屋が6帖以上 ▼モデルハウスのご内覧、受付開始!お早めのご成約で外壁やフローリング等、カラーセレクトも対応致します♪ |
||
| 取扱会社 |
|
||
| QRコード |
このQRコードを読み取ることで、スマホでも物件情報を確認できます。 |
||
※地図上に表示される物件の位置は付近住所に所在することを表すものであり、実際の物件所在地とは異なる場合がございます。
江戸川区松江7丁目 新築戸建 A号棟に関するこだわり条件から探す
江戸川区以外の市区町村から探す